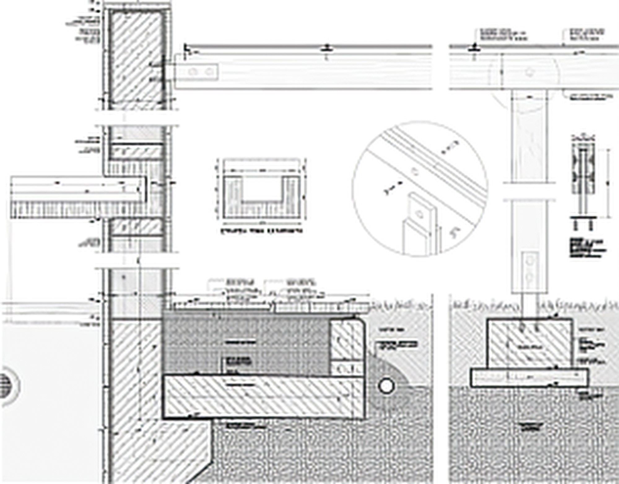
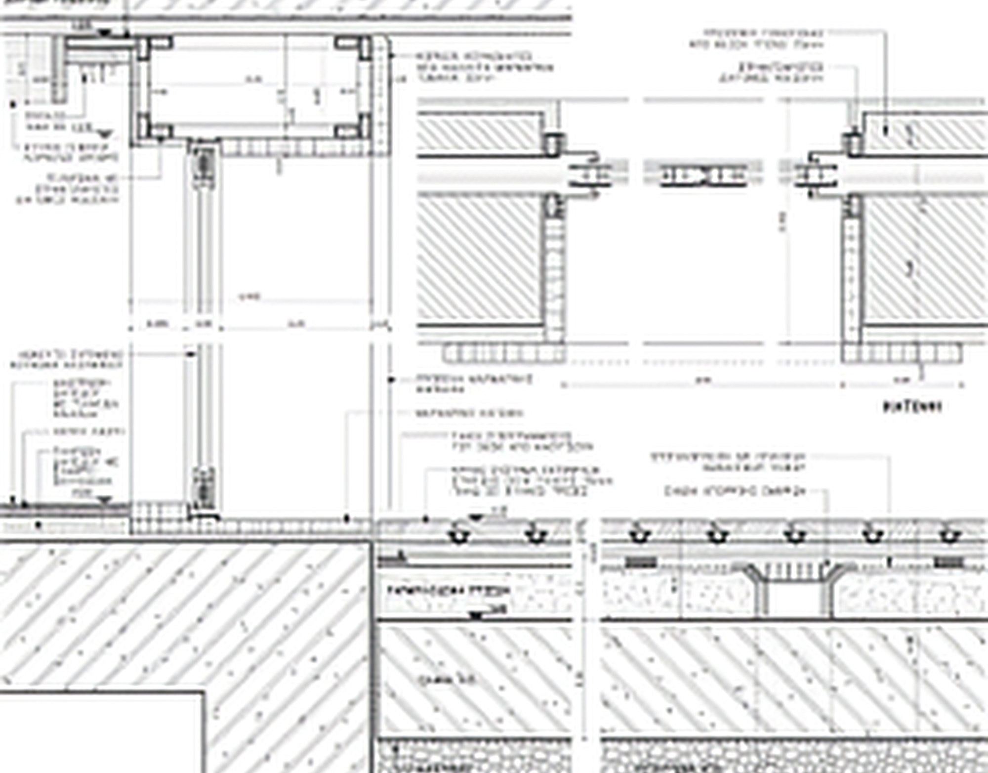
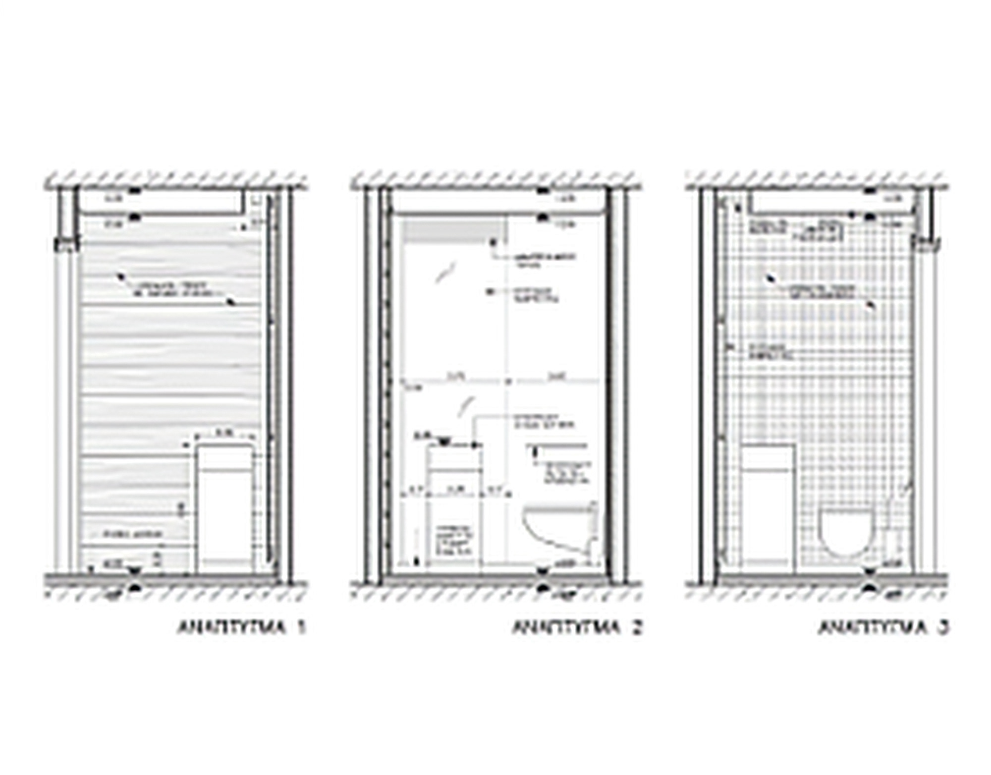
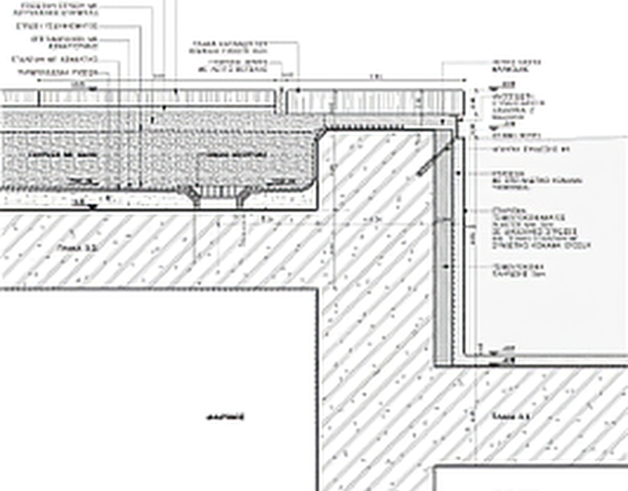
ΜΕΛΕΤΗ ΑΔΕΙΑΣ
ΣΧΕΔΙΑ ΕΦΑΡΜΟΓΗΣ
PeTROS PROeSTOS
ΜΕΛΕΤΗ ΑΔΕΙΑΣ
ΣΧΕΔΙΑ ΕΦΑΡΜΟΓΗΣ
Oλα τα έργα © Petros Proestos 2026. Με επιφύλαξη παντός δικαιώματος. Μην αναπαραγάγετε χωρίς τη ρητή γραπτή συγκατάθεση του κατόχου.